Reforma integral
Zona Cuzco, Madrid
80 m2 | 3 Dormitorios | 2 baños
DESPUÉS _ Fotos del Proyecto
ANTES _ Fotos del Proyecto

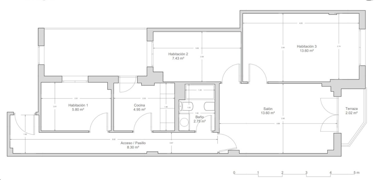
PLANO REFORMADO
Se consiguen tres habitaciones homogéneas y un baño extra. Llevamos la cocina al salón y reducimos el pasillo, maximizando la utilización del espacio

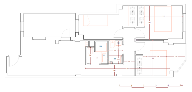
PLANO ORIGINAL
Entrada estrecha con pasillo muy largo desaprovechado. Habitaciones desiguales, dos muy pequeñas y una tercera más grande sin armarios. Un sólo baño.
Reformamos íntegramente este piso:
- Demolición entera del piso
- Renovación total, tanto de la instalación electrica, como de toda la instalación de fontanería.
- Cocina nueva abierta al salón
- Rediseño para incluir dos baños
- Rediseño de los tres dormitorios e inclusión del balcón
- Nuevo suelo porcelánico efecto madera en toda la casa
- Armarios empotrados a medida, interior textil
- Retirada del gotelé en paredes y techos y pintura
- Instalación de aire acondicionado LG 4x1 y ejecución previa de la preinstación en obra








